Maison Type 4 - 88 m2 - Villechetif
villechetif
24 Rue De La Croix
📍 Située dans une zone pavillonnaire calme, cette maison de 88m² offre un cadre de vie agréable, à proximité de nombreux équipements publics et services (église, mairie, centre équestre, commerces …).
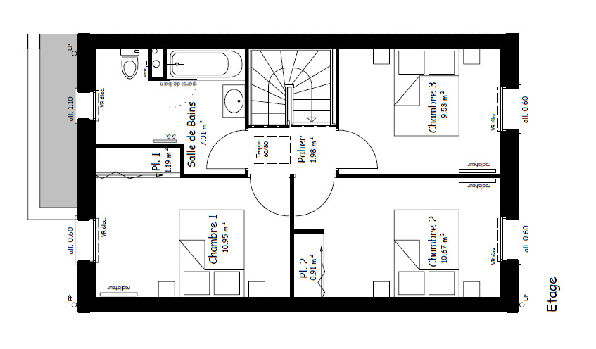
🛋️ Elle se compose d’une entrée fonctionnelle, d’une cuisine ouverte sur un spacieux salon-séjour de 27m², de trois chambres, d’une salle d'eau au RDC, d'une salle bain à l'étage, et de deux WC. Elle bénéficie également d’une bonne luminosité et de nombreux rangements.
Les plus : Terrasse, jardin, local vélos et 2 places de parking par logement.
🔥Chauffage individuel pompe à chaleur
✅ Disponible juin 2026
Sans frais d'agence.
24 rue de la Croix.
+ 44,39 € charges
vierge
vierge
Terrasse
Je cherche un logement à louer
Vous devez d'abord effectuer une demande de logement. Profitez en pour découvrir nos logements disponibles.
Je souhaite un renseignement sur un logement
Si le logement est à louer, cliquez sur "ce bien m'interresse", l'équipe de TROYES AUBE HABITAT vous répondra rapidement. Sinon n'hésitez pas à nous contacter par téléphone ! 03 25 71 17 17.
Quelles sont les conditions pour obtenir un logement ?
Avant toute demande, Il faut remplir 3 conditions :
1- Être de nationalité française ou titulaire d’un titre de séjour délivré par les autorités françaises en cours de validité.
2- Disposer de revenus imposables de l’année N-2 ne dépassant pas les plafonds de ressources définis chaque année par l’Etat et consultables sur ce lien. Ces plafonds sont révisés chaque année le 1er janvier.
Quels justificatifs dois-je fournir ?
Vous trouverez la liste des pièces justificatives ici.
ATTENTION : pour être prise en compte votre demande doit etre complète.
Sinon, TROYES AUBE HABITAT ne pourra pas vous faire de proposition de logement.
Il est indispensable de vous assurer que :
• Les pièces justificatives soient à jour,
• Les pièces scannées ou photographiées soient bien lisibles,
• Toutes les pages des pièces soient bien présentes, notamment si elles sont recto-verso,
• Les informations qu’elles contiennent correspondent bien à ce qui est déclaré dans le formulaire de demande.
Une fois ma demande en ligne complétée que se passe t il ?
Un(e) chargé(e) de clientèle me contacte après le dépôt de ma demande pour m’expliquer la procédure de traitement et me proposer un logement correspondant à mes besoins et conforme à mon plafond de ressources. Mais je peux aussi consulter les annonces et cliquer sur celle qui m'interresse pour etre mis en relation avec un(e) chargé(e) de clientèle.
En cas de difficultés, puis-je me faire aider par un conseiller ?
N'hésitez pas à nous appeler, nos conseillers sont là pour ça.
TROYES AUBE HABITAT m'a proposé un logement que se passe-t-il ensuite ?
Si le logement vous convient, votre dossier sera présenté en commission d'attribution, qui validera ou non l'attribution de votre dossier sur le logement proposé.
Je cherche un logement à louer
Vous devez d'abord effectuer une demande de logement. Profitez en pour découvrir nos logements disponibles.
Je souhaite un renseignement sur un logement
Si le logement est à louer, cliquez sur "ce bien m'interresse", l'équipe de TROYES AUBE HABITAT vous répondra rapidement. Sinon n'hésitez pas à nous contacter par téléphone ! 03 25 71 17 17.
En cas de difficultés, puis-je me faire aider par un conseiller ?
N'hésitez pas à nous appeler, nos conseillers sont là pour ça.
En cas de difficultés, puis-je me faire aider par un conseiller ?
N'hésitez pas à nous appeler, nos conseillers sont là pour ça.
En cas de difficultés, puis-je me faire aider par un conseiller ?
N'hésitez pas à nous appeler, nos conseillers sont là pour ça.
Qu'est-ce que la Commission d'Attribution des Logements (CAL) ?
La commission est composée de plusieurs membres : Sa mission est d’examiner les spécificités des demandes de chaque ménage désigné sur un même logement afin de déterminer, conformément à la règlementation, l’ordre d’attribution du logement. La Commission attribue dans le respect des dispositions prévues aux articles L 441-1, L 441-1-5, L441-1-6 du CCH . Le chargé de clientèle en charge de votre dossier n’est pas présent à la commission.
Que faire quand un logement m'est attribué par la commission ?
TROYES AUBE HABITAT me contacte , j’ai alors 3 jours pour répondre et organiser avec le chargé de clientèle la visite du logement, si celle-ci n'a pas été effectuée avant. Dès que je réceptionne la proposition, je prends contact avec TROYES AUBE HABITAT le plus rapidement possible .
L’ABSENCE DE RÉPONSE AU DELA DE 10 JOURS SERA CONSIDÉRÉE COMME UN REFUS.
Et une fois un logement attribué, que se passe-t-il ?
Si j’accepte la proposition :
TROYES AUBE HABITAT organise la signature du bail et j’organise mon déménagement. Ma demande est satisfaite, mon dossier est clôturé et sort des fichiers de demandes.
Si je refuse la proposition :
Je retourne dans la file d’attente des demandeurs et le logement est proposé au demandeur suivant désigné par la CAL.
Attention, au-delà de 2 refus de logements adaptés à ma situation familiale, financière et de santé, mon dossier perdra sa priorité de traitement et TROYES AUBE HABITAT ne pourra me garantir un délai de traitement satisfaisant sans changement sensible des critères de ma recherche.
TROYES AUBE HABITAT organise la signature du bail et l'état des lieux du logement.
Je suis déjà locataire de TROYES AUBE HABITAT, comment puis-je obtenir des informations ?
Créez votre compte sur l'ESPACE LOCATAIRE sans tarder et retouvez toutes les réponses à vos questions !
J'ai envoyé un message concernant un bien en location, sous quels délais vais-je avoir un retour ?
Nos chargé (e)s de clientèle vous repondent dans un délai de 24h à 48h.
En cas de difficultés, puis-je me faire aider par un conseiller ?
N'hésitez pas à nous appeler, nos conseillers sont là pour ça.
Qu'est ce qu'un "parcours résidentiel ?
C'est changer de logement en fonction de l’évolution des besoins au bon moment, pour le bon endroit. Lorsque l’on devient locataire dans le parc du logement social, celui-ci est adapté à la composition de la famille, à ses revenus. Avec le temps, les besoins évoluent et il faut parfois prendre un logement plus grand. Puis, les enfants partent, les allocations logement peuvent diminuer et le logement peut devenir trop cher et trop grand. Ou bien, encore, une augmentation substantielle des ressources du locataire va l’amener à devoir s’acquitter d’un supplément de loyer et dans certains cas quitter le logement social.
Quel est la durée de préavis si je quitte mon logement ?
Le délai légal est de 3 mois, il débutera à partir de la date de réception de ma lettre de congé. Le préavis peut être réduit sous certaines conditions prévues par la loi.
Comment donner congé ?
J'envoie ma lettre de congé en recommandé avec accusé de réception, signée par tous les titulaires du bail.
Quand et comment régler mon loyer ?
Le loyer est à régler avant le 5 du mois suivant par chèque, virement bancaire, par Efficash (auprès de La Poste), par carte bancaire par téléphone ou depuis son espace locataire.
Vous pouvez également opter pour les prélèvement automatique, les dates disponibles sont : 1, 7, 12 et 15.
Je rencontre des difficultés pour payer mon loyer ?
Vous pouvez vous rendre à votre agence ou nous contacter au 03 25 71 17 17 afin qu'on vous mette en relation avec votre chargé€ de clientèle afin de trouver des solutions.
Quand et comment transmettre mon attestation d'assurance ?
Je transmets ma nouvelle attestation d'assurance avant la fin de la période de validité de la précédente.
Je peux l'envoyer depuis mon espace locataire, par email à l'adresse contact@troyes-aube-habitat.fr ou la faire parvenir à mon agence.
Je cherche un logement à louer
Vous devez d'abord effectuer une demande de logement. Profitez en pour découvrir nos logements disponibles.
Je souhaite un renseignement sur un logement
Si le logement est à louer, cliquez sur "ce bien m'interresse", l'équipe de TROYES AUBE HABITAT vous répondra rapidement. Sinon n'hésitez pas à nous contacter par téléphone ! 03 25 71 17 17.
En cas de difficultés, puis-je me faire aider par un conseiller ?
N'hésitez pas à nous appeler, nos conseillers sont là pour ça.
En cas de difficultés, puis-je me faire aider par un conseiller ?
N'hésitez pas à nous appeler, nos conseillers sont là pour ça.
En cas de difficultés, puis-je me faire aider par un conseiller ?
N'hésitez pas à nous appeler, nos conseillers sont là pour ça.
10000 Troyes
En faire plus
Nos services
A tous moments, nos conseillers sont à votre écoute dans nos 8 agences pendant tout votre parcours locataire.
Nous vous aidons pour trouver
le logement qui vous correspond
Vous ne trouvez pas le logement adapté à vos besoins.
N’hésitez pas à contacter votre agence la plus proche, des solutions individuelles peuvent être apportées.
Nous vous aidons pour le montage
de votre dossier au complet.
Pas de panique, nos conseillers ont l’habitude de monter des dossiers logement. Ils vont aideront à rassembler tous les papiers nécessaires.





